 
    Embassy signed an MoU with the Government of Tamil Nadu at the Tamil Nadu Global Investors Meet 2015, for the development of an industrial park in the state with a projected total investment of USD 135 Million.
The JV with Brookfield Asset Management will span the development of integrated Industrial and Logistics Parks with support facilities.
The development is envisaged to provide world class infrastructure for industrial locations for setting up research and development, manufacturing and assembly facilities. It will provide build-to-suit factory building and warehousing facilities to industrial and logistics clients on a lease rental basis. The project will also have options for industrial land with ready infrastructure for manufacturers to set up their own factories.
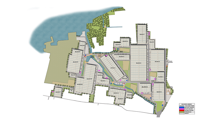
Download Brochure 198 acres of industrial converted land with 2.7 Million sq. ft. of development potential
 198 acres of industrial converted land with 2.7 Million sq. ft. of development potential 63 acres are offered as plotted development
 63 acres are offered as plotted developmentEmbassy Industrial Park, Sriperumbudur is located strategically along National Highway 4 (Chennai – Bengaluru Highway) and is in proximity to developed industrial hubs of Sriperumbudur and Oragadam which houses marquee companies such as Hyundai, Saint-Gobain, Daimler, Renault-Nissan, Lenovo etc
Sriperumbudur with its excellent connectivity, proximity to seaport, flourishing social infrastructure along with availability of skilled workforce continue to drive the growth.
Reference companies around the park:
Hyundai factory, Daimler, Nokia
 42 kms
42 kms Chennai Port – 58 Kms
Chennai Port – 58 Kms Ennore Port – 79 Kms
Ennore Port – 79 Kms City Centre 50 Kms
City Centre 50 Kms NH 4 Chennai – Bengaluru Highway
NH 4 Chennai – Bengaluru Highway Sriperumbudur
Sriperumbudur Oragadam
Oragadam 
(Bangalore – Chennai Highway)
 
Sriperumbudur has excellent road, rail, and seaport connectivity
 
Local Workforce (Skilled and Semi-Skilled)
 
All approvals met before construction



